Eladó Lakás (téglaépítésű) Taksony - ECOLAND LAKÓPARK

80 m2Alapterület 3 Szoba
96 000 000 Ft Ár
394562Azonosító
További adatok

Kertre néző Kilátás

Építés alatt Állapot

Tégla Szerkezet

Hőszivattyú Fűtés

Összkomfort Komfort

Saját garázs Parkolás

Emelet 1

Legfelső emelet

Nincs Lift

Tömegközlekedés

Amerikai konyhás

Nincs Kertkapcsolat

2026 Építés éve

Hitelkalkuláció – a részletekért kattintson valamelyik bank logójára!

ECOLAND lakópark Taksonyban!

Taksonyban 6265 nm-es területen egy modern 12 lakásos lakópark építése hamarosan megkezdődik, és ezzel együtt elindítjuk az előértékesítést!

Amit kínálunk!
-Prémium kivitelezés,
-Korszerű, energiatakarékos lakások,
-Átgondolt alaprajzok, kényelmes életterek,
-Csendes, nyugodt környezet,
-Földszinti lakások saját kertrésszel rendelkeznek,
-Kiváló megközelíthetőség.

Legyen ön az elsők között, akik kiválaszthatják álmaik otthonát a legjobb adottságú lakások közül!

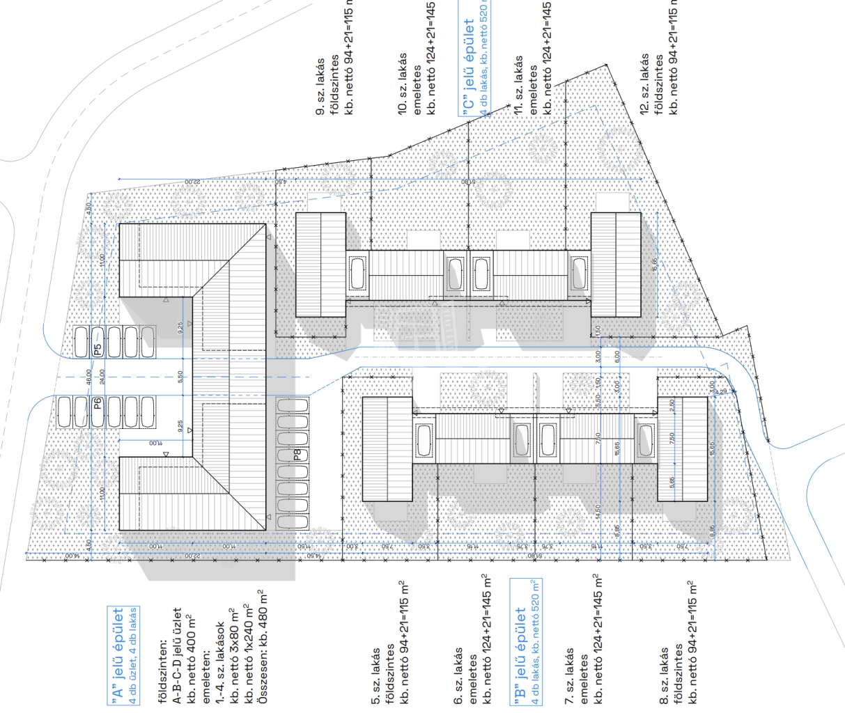
A lakások különböző méretűek, a belső terek még az ön izlése, igénye szerint alakíthatóak. A projektben különböző méretű üzlethelyiségek kialakítása is tervezett. A hirdetésben mellékelünk néhány alaprajzot.

Az " A " épület bal oldalán 3 db emeleti lakás loggiával.
A lakások alapterülete: nettó 80 nm.
nappali+ étkező+ konyha+ fürdőszoba-WC+ házt.h+WC+loggia
Ára: 96.000.000.-Ft

Műszaki tartalom:
- falazat Porotherm N+F 30 tégla,
- vasbeton födém + 25 cm szigetelés,
- külső szigetelés 15 cm polisztirol,
- 3 rétegű műanyag nyílászárók,
- elektromos alumínium redőny + szúnyogháló,
- elektromos garázsajtó,
- hőszivattyús fűtésrendszer, padlófűtés,
- lakásonként 4 db Gree hűtő-fűtő klíma,
- hideg burkolatok 7.000.-Ft/nm,
- meleg burkolatok 6.000.-Ft/nm,
- beltéri ajtók 80.000.- Ft/db,
- szaniterek 800.000.-Ft-ig.
- földszinti lakások saját telekrésze lekerítve,
- elektromos autó töltési lehetőség.

Várható átadás: 2027. évvége.
A lakások 20 % önerővel leköthetők.

Irodánk 30 éves szakmai tapasztalattal áll ügyfelei rendelkezésére!
Amivel segítjük az Ön ingatlan vásárlását:
- ingyenes hitelügyintézés (CSOK és Babaváró és egyéb hitel ügyintézése is)
- jogi háttér,
- földhivatali ügyintézés,
- energetikai tanúsítvány ügyintézése,
- a vevő számára ingyenes az ingatlanközvetítés.

Várom szíves megkeresését!
Országh Eszter

Országh Eszter

Hívjon bizalommal

+36-30-648-Mutasd!

További hirdetéseim

Ingatlaniroda
GDN Ingatlanhálózat - HázPont
+36 30 785 2223

Küldjön üzenetet

Visszahívást kérek

Hasonló ingatlanok