Eladó Családi ház Dunaharaszti - Fő út

109 m2Alapterület 3 Szoba
125 000 000 Ft Ár
392764Azonosító
További adatok

1562 m2 Telek

Kertre néző Kilátás

Közepes Állapot

Tégla Szerkezet

38 m2 Erkély/terasz

Gáz (konvektor) Fűtés

Összkomfort Komfort

Saját garázs Parkolás

Kiváló Tömegközlekedés

Nem Amerikai konyhás

Van Kertkapcsolat

1970 Építés éve

Hitelkalkuláció – a részletekért kattintson valamelyik bank logójára!

Eladó önálló családi ház nagy telekkel Dunaharasztiban!

Dunaharaszti frekventált részén az Óvárosban nettó 108,5 nm alapterületű, tégla építésű, önálló családi házat kínálunk megvételre 1562 nm-es telken.
A telek övezeti besorolása: LKe3.
Mérete: 25 x 62 méter.

Az ingatlan több lehetőséget rejt magában, korszerűsítés után kényelmes, élhető otthon lehet nagy telekkel.
Elhelyezkedése miatt vállalkozások számára is kiváló lehetőség
(régen kertészet működött itt).

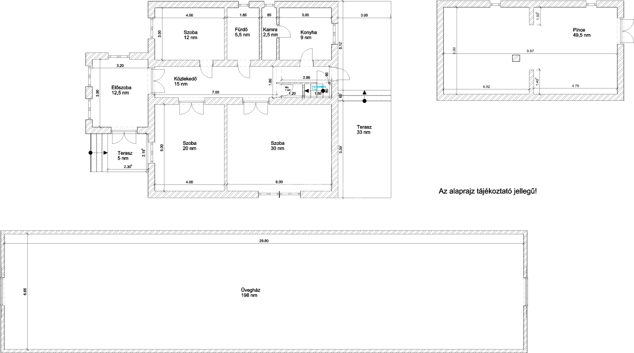
A ház beosztása:
- előszoba 12,5 nm,
- közlekedő 15 nm,
- szoba 12 nm,
- szoba 20 nm,
- szoba 30 nm,
- fürdőszoba 5,5 nm,
- WC 1,0 nm,
- kamra 2,5 nm,
- konyha 9,0 nm,
- padlásfeljáró 1,0 nm,
---------------------------------
összesen: 108,5 nm
+ terasz 33 nm,
+ terasz 5,0 nm,
+ pince 49,5 nm.

A udvarban található még, egy 198 nm-es üvegház, valamint egy tároló.

A telken fúrt kút van.
Minden közmű a házba bekötve.

Az ingatlan elhelyezkedése kiváló, HÉV- megálló a közelben.
Iskola, óvoda, bölcsöde gyalogosan néhány perc alatt elérhető.

Amivel segítjük az Ön ingatlanvásárlását:
- ingyenes hitelügyintézés,
- jogi háttér,
- földhivatali ügyintézés,
- energetikai tanúsítvány,
- a vevő számára az ingatlanközvetítés ingyenes.

Irodánk 30 éves szakmai tapasztalattal áll ügyfelei rendelkezésére!

Várom szíves megkeresését!
Országh Eszter

Országh Eszter

Hívjon bizalommal

+36-30-648-Mutasd!

További hirdetéseim

Ingatlaniroda
GDN Ingatlanhálózat - HázPont
+36 30 785 2223

Küldjön üzenetet

Visszahívást kérek

Hasonló ingatlanok