Eladó Lakás (téglaépítésű) Budapest XIII. kerület - Ördögmalom utca környékén

69 m2Alapterület 3 Szoba
114 900 000 Ft Ár
393973Azonosító
További adatok

Utcai Kilátás

Újszerű Állapot

Tégla Szerkezet

24 m2 Erkély/terasz

Gáz (cirkó) Fűtés

Összkomfort Komfort

Garázs/beálló vásárolható Parkolás

Emelet 1

Van Lift

Kiváló Tömegközlekedés

Amerikai konyhás

Nincs Kertkapcsolat

2007 Építés éve

Közös költség 15 000 Ft

Hitelkalkuláció – a részletekért kattintson valamelyik bank logójára!

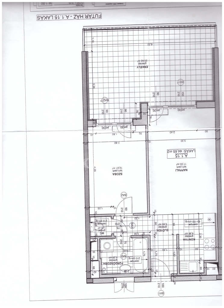
XIII. kerület Reitter Ferenc utca, Ördögmalom utca környékén eladó újszerű, 69 m²-es, 3 szobás beépített teraszos téglalakás.

Tulajdoni lapon 45 m² lakótér (amerikai konyhás nappali és 2 háló) + 24 m² beépített erkély

Első emeleti lakás liftes, 4 szintes, 2009-ben épült társasházban.
Csendes, zöldre néző, nyugodt környezetben találhatóm
Kiváló hangszigetelés, a lakás rendkívül csendes.
Két külön nyíló szoba + amerikai konyhás nappali
Fürdő és WC külön helyiségben
24 m²-es beépített, fűthető erkély, amely teljes értékű élettérként használható.
Az erkély szigetelt, elektromos padlófűtéssel ellátott.
Prémium burkolatok és minőségi kivitelezés az egész lakásban.
Beépített bútorok több helyiségben, praktikus tárolási megoldásokkal.
Gépesített konyha beépített sütővel és mosogatógéppel.
Fűtés Junkers gázkazánnal, kiegészítve elektromos padlófűtés el.
Alacsony rezsi, jól szigetelt ingatlan.
Közös költség 15.000 Ft/hó, garázzsal együtt 18.000 Ft.
Átlag rezsi kb. 30.000 Ft, télen kb. 50.000 Ft
3x32 Amperes elektromos hálózat, nagy teljesítményű fogyasztókhoz is ideális.
Kialakított kábelezés internethez és HDMI rendszerhez.
Biztonsági, több ponton záródó bejárati ajtó.
Előkészített riasztó rendszer.
Minőségi, mosható festés a falakon.
Családbarát, nyugodt környezet, kiváló infrastruktúra.
Buszmegálló 1 perc sétára, belváros 15 perc alatt elérhető.
Közelben iskola, óvoda, bölcsőde, üzletek és szolgáltatások.
Rákos-patak közelében, zöldövezeti kikapcsolódási lehetőségekkel.
Parkolóhely teremgarázsban külön megvásárolható.
Ideális választás családoknak vagy befektetésnek is.
Országh Eszter

Országh Eszter

Hívjon bizalommal

+36-30-648-Mutasd!

További hirdetéseim

Ingatlaniroda
GDN Ingatlanhálózat - HázPont
+36 30 785 2223

Küldjön üzenetet

Visszahívást kérek

Hasonló ingatlanok