Eladó Ikerház Százhalombatta - ÚJ ÉPÍTÉSŰ, IKERHÁZI LAKÁSOK!

88 m2Alapterület 2 + 2 Szoba
110 000 000 Ft Ár
393451Azonosító
További adatok

500 m2 Telek

Kertre néző Kilátás

Építés alatt Állapot

Tégla Szerkezet

11 m2 Erkély/terasz

Hőszivattyú Fűtés

Összkomfort Komfort

Saját beálló Parkolás

Tömegközlekedés

Amerikai konyhás

Van Kertkapcsolat

2026 Építés éve

Hitelkalkuláció – a részletekért kattintson valamelyik bank logójára!

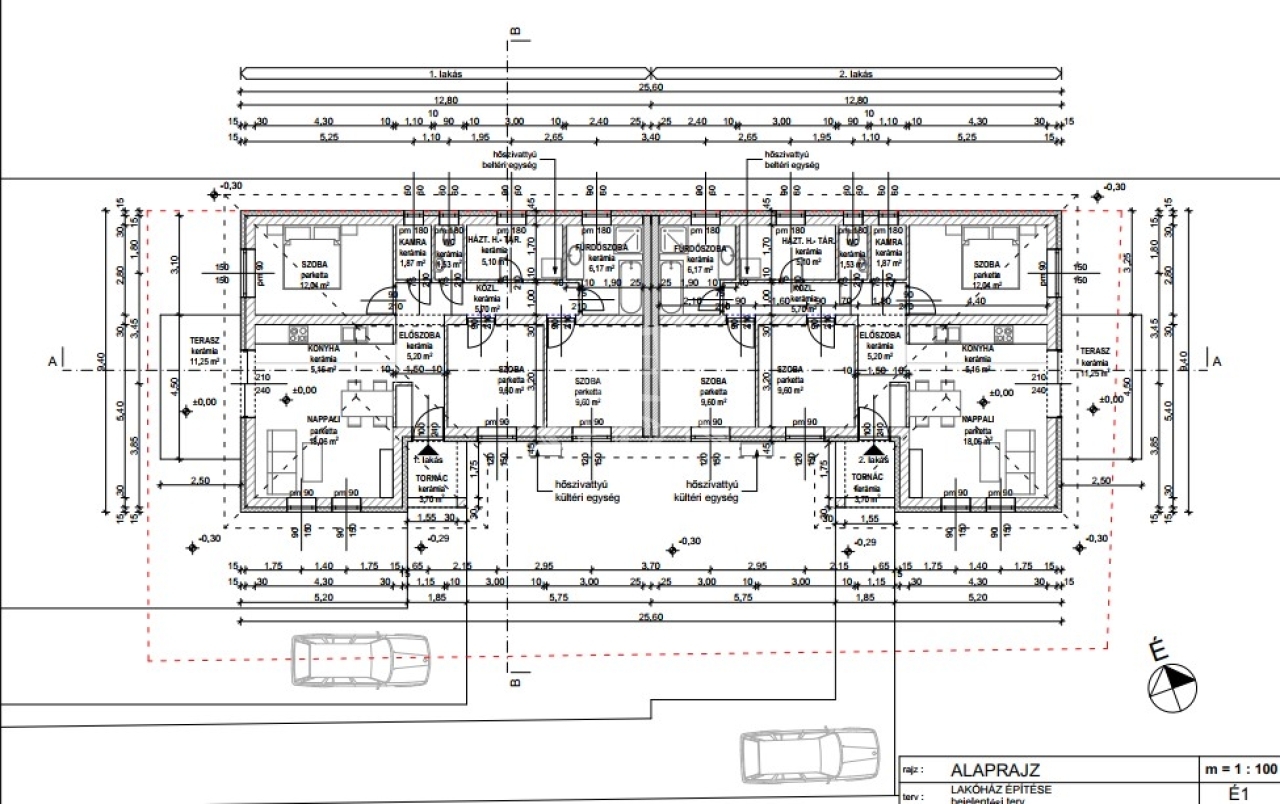
Százhalombatta családi házas övezetében, Dunafüreden kínálunk megvételre két lakóegységből álló ikerházat.

A kivitelező cég számos százhalombattai referenciamunkával rendelkezik, aki több éve megbízhatóan, pontos határidőkkel végzi a kivitelezést ügyfelei legnagyobb megelégedésére.

Az építkezés folyamatosan halad, várható befejezés: 2027 tavasz.

Az ikerházi lakások társasházi alapító okirattal, külön helyrajzi számmal (albetétesítve) és külön mérőórákkal, saját kertrésszel kerülnek átadásra a leendő tulajdonosok részére.

1.lakás:
bruttó 107 nm, nettó 80 nm + 11,25 nm terasz + 3,70 nm tornác
telekterület: 300 nm
szobaszám: 2 + 2


2.lakás:
bruttó 107 nm, nettó 80 nm 11,25 nm terasz + 3,70 nm tornác
telekterület: 450 nm
szobaszám: 2 + 2

Az ár a befejezett, KULCSRAKÉSZ állapotra vonatkozik!

Főbb műszaki paraméterek:
- alap: vasalt, szigetelt beton sávalap
- tartófalazat: 30-as Porotherm XTherm okostégla
- válaszfalak: 10-es Ytong
- szigetelés: homlokzat 15 cm dryvit, lábazat 10 cm xps
- födém: a szerkezetű, 25 cm fújt cellulóz szigeteléssel
- fűtés: Panasonic hőszivattyú (5 kW), padlófűtés hőleadással
- melegvíz: hőszivattyúra kötött 200 literes HMV tartály
- nyílászárók: fehér, három rétegű hő-és hangszigetelt, beépített redőnytokkal

A belső ajtók 50.000 Ft/db, a hideg-és meleg burkolatok 4.000 Ft/nm-es árig a vevő által szabadon választhatóak.

Az érdeklődők részére teljes műszaki és fotódokumentáció rendelkezésre áll, valamint már elkészült referencia házak is megtekinthetőek.

Otthon Start, CSOK Plusz és piaci hitel igénybe vehető, melyben ingatlanirodánk BANKFÜGGETLEN hitelcentruma, DÍJMENTESEN áll érdeklődőink rendelkezésére.

- Egyedi, bankfiókban nem elérhető kamat- és díjkedvezmények
- Hitelképesség vizsgálat
- Idő, energia és pénz megtakarítás
- Teljes hivatali ügyintézés

Ne maradjon le róla!

További információkért és megtekintéssel kapcsolatban várom jelentkezését a hét minden napján.

A hirdetésben szereplő adatok tájékoztató jellegűek, nem minősülnek ajánlattételnek.
Országh Eszter

Országh Eszter

Hívjon bizalommal

+36-30-648-Mutasd!

További hirdetéseim

Ingatlaniroda
GDN Ingatlanhálózat - HázPont
+36 30 785 2223

Küldjön üzenetet

Visszahívást kérek

Hasonló ingatlanok