Eladó Családi ház Gencsapáti - Daniella Lakópark

103 m2Alapterület 4 Szoba
99 855 323 Ft Ár
334284Azonosító
További adatok

478 m2 Telek

Kertre néző Kilátás

Új Állapot

Könnyűszerkezet Szerkezet

21 m2 Erkély/terasz

Elektromos Fűtés

Dupla komfort Komfort

Saját garázs Parkolás

Közepes Tömegközlekedés

Amerikai konyhás

Van Kertkapcsolat

2022 Építés éve

Hitelkalkuláció – a részletekért kattintson valamelyik bank logójára!

EGY TECHNOLÓGIA AMI MEGHÓDÍTOTTA A VILÁGOT
Költözzön még az idén!
Kanadában és az Egyesült Államokban már a legelterjedtebb könnyűszerkezetes házak építési technológiája, ami most már Magyarországon is elérhető.
A DANIELLA LAKÓPARK Szombathely és Gencsapáti határán várja új lakóit.

Zöldmezős beruházásként összesen 16 db könnyűszerkezetes lakóház kerül kialakításra. Kiváló fekvésű telkeken építjük fel új otthonát, a legmodernebb SIP technológiával, figyelembe véve az új modern energetikai és építészeti jogszabályokat. Lakóháza 4-8 hónap alatt a ZBAU gyors és megbízható kivitelezésében a legjobb minőségben kulcsrakészen elkészül. A DANIELLA LAKÓPARK a 89-es és 87-es főút szomszédságában helyezkedik el, így gépkocsival Szombathely körgyűrűjén a város minden oldalról gyorsan és jól megközelíthető. A 89-es és 87-es főútvonalak pár éven belül további fejlesztésen esnek át, ezáltal a gyorsforgalmi utak közvetlen és gyorsabb elérést biztosítanak Kőszeg, Bucsu és Ausztria de a 86-os főút közvetlen irányában is. A telkek összterülete épületenként megoszlik, így egy-egy épülethez tartozó telekméret várhatóan 438 és 478 m2 közé esik. Családi házaink alaprajzai változatos elrendezéssel a mai kornak megfelelő igények alapján készültek, tíz különböző típustervből választhat. A terveket komoly múlttal rendelkező építészmérnökök készítették, mely hátteret biztosít az új modern építészet és a felmerülő igények összehangolásában. Egyedi tervdokumentáció alapján is kivitelezzük modern SIP panelből készült otthonát! A lakóépületbe, lakásokba nem szerelünk gázt, a kialakítandó fűtés elektromos üzemű. Az alapfelszereltségben a teljes épületben hagyományos vizes rendszerű padlófűtést és 6Kw fűtőteljesítményíg AT-fűtőmodult (elektromos kazán) szerelünk az épületekbe. Így a hagyományos
vízkeringetős padlófűtéses technológiával biztosítható a fűtési rendszer melynél a hőledó maga a teljes padlófelület. Kis helyigénye és nagyon magas fűtési hatásfoka megfelel a legmagasabb elvárásoknak és kimeríti az épület fűtési energiájának használatát. Ezen felül választhat más fűtéstecnológiák közül.
Gree levegő-víz hőszívattyús rendszer hagyományos vízkeringetős technológiával, mely
fan-coil hőleadókkal van felszerelve. Hatékonysága
messze erőteljes fűtés/hűtés kialakítására ad lehetőséget
elektromos rendszerekre hangolva. A falra szerelhető
fan-coil hőleadó pedig alacsony hőmérsékletű (30-35
fokos) vízes rendszereknél magas hatásfokot biztosít a
fűtés és egyben hűtés elérésére. Ezzel a technológiával nem csak a fűtést hanem egyben a hűtést is tudjuk
biztosítani az épületben és mindezt egy berendezésen
keresztül. Mivel a beépített eszközök, termékek A++ jelzésűek ezért az épület energetikai besorolása az új jogszabályoknak megfelel és az ingatlan várható eredménye a majdnem nulla energiaosztályba sorolást kaphatja
(76kWh/m2 alatti érték). Ebben az esetben a vízkeringetős padlófűtés a csőhálózat lefektetésével választható ,
opcionálisan kérhető. Az eszköz egyben használati melegvíz előállítására is alkalmas. Osztott rendszerű hőszivattyú, beépített 185l-es HMV tárolóval, magyar nyelvű
kezelőfelülettel és számos extra kiegészítővel. Külön
beltéri és kültéri egységből áll. Felépítéséből adódóan
kis helyigényű készülék. Saját beépített HMV tárolóval,
fűtőbetéttel, és háromjáratú váltószeleppel a könnyebb
telepíthetőség érdekében. Alkalmazkodva a kor igényeihez Wi-Fi eléréssel és saját Gree alkalmazással távolról
kezelhető.
2 féle fan-coil hőleadó berendezés közül választhat, a
falraszerelt és a lábon álló verziók egyikéből. Az egyik
helytakarékos, míg a másik könnyebben kezelhető.. Norvég elektromos Wi-fi fűtőpaneleket szerelünk 2023 Júliustól kiegészítő, rásegítő fűtésként.
A radiátorok helyett jól működő elektromos fűtések az új
2023 Novemberi jogszabályban meghatározott elektromos energiafelvétel miatt, kisegítő fűtésként vagy napelemmel együtt működtetve éri el azokat az energetikai
értékeket amik szükségesek az új építésű épületek energetikai számításaihoz. Ezért elsősorban fürdőszobába,
Wc helyiségbe vagy olyan kisegítős helyiségekbe szereljük, ajánljuk amikkel az épület energetikai jellemzőit
nem vagy csekély mértékben befolyásoljuk. Kialakításuk
nem igényelnek különösebb kivitelezési feladatokat a
villanyszerelésen kívül. Minden szobában lévő fűtőpanel külön termosztáttal van ellátva és wi-fi vel okostelefonról is működtethető. Akár szobánkénti fűtésállítási
lehetőség, vagy fűtőtestenkénti távvezérlés. Mire hazaér
fűtött térbe ér haza. Költséghatékony és modern megjelenést biztosít hosszútávon. Többféle színben.
A Norvég elektromos padlófűtési rendszert
kiegészítő fűtésként ajánljuk a fűtőpanelek mellé vagy
akár helyettük is. Abban az esetben ha nem a hagyományos csőkígyós megoldást választja úgy ezen termékek
kialakítása nem igényel különösebb kivitelezési feladatokat a villanyszerelésen és az alap burkolásokon kívül.
Itt közvetlen a járólap vagy burkolatok alá kerül beépítésre a fűtőszönyeg, mely költséghatékony kivitelezést
eredményez. Olyan helyiségekbe ajánljuk ahol hidegburkolattal ellátott padozat kerül kialakításra (mint pl.:
fürdő, Wc, nappali, konyha stb). Minden helyiség külön
termosztáttal van ellátva és wi-fi vel okostelefonról is
működtethető. Akár helyiségenkénti fűtés állítási lehetőségre is van lehetőség. Költséghatékony és hosszútávon jól üzemelő rendszer.

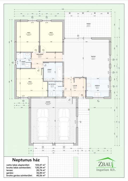
A hirdetésben szereplő ingatlan a Neptunus típusház. A Neptunus ház ára a kulcsrakész állapot alapján került kiszámításra.

Ha felkeltette érdeklődését, bővebb tájékoztatásért keresse irodánkat !
Igénybe vehető állami támogatások : CSOK, kamattámogatott hitel, babaváró, ÁFA visszaigénylés, illeték kedvezmény. Ragadja meg a lehetőségeket még ebben az évben. Referencia házak megtekinthetők.
Országh Eszter

Országh Eszter

Hívjon bizalommal

+36-30-648-Mutasd!

További hirdetéseim

Ingatlaniroda
GDN Ingatlanhálózat - HázPont
+36 30 785 2223

Küldjön üzenetet

Visszahívást kérek

Hasonló ingatlanok