Eladó Családi ház Érd - Érd Parkváros határán

115 m2Alapterület 4 Szoba
120 000 000 Ft Ár
394315Azonosító
További adatok

512 m2 Telek

Kertre néző Kilátás

Új Állapot

Tégla Szerkezet

Hőszivattyú Fűtés

Összkomfort Komfort

Saját garázs Parkolás

Közepes Tömegközlekedés

Amerikai konyhás

Van Kertkapcsolat

2026 Építés éve

Nyugati Tájolás

Hitelkalkuláció – a részletekért kattintson valamelyik bank logójára!

Ez a ház nem új építés, hanem a holnap otthona:

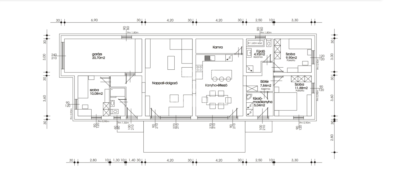
A kulcsot fordítod, és egyszerre nyílik ki a tér, a kényelem és a lehetőségek kapuja. Ez a 115 m²-es családi ház egy 512 m²-es telekre épül, ahol a nappali, a hálószobák és a kert együtt teremtenek élhető, harmonikus világot. Nem az ígéret, hanem a valóság határozza meg az otthon minden részletét.

Minden négyzetméter tudatos döntés:

Három jól szeparált szoba biztosít privát teret minden családtag számára, miközben a nappali–étkező–konyha hármasa természetes központként működik. A WC és fürdő rugalmas kialakítása lehetővé teszi, hogy zuhanyzó vagy kád szerint alakítsd a teret, a garázs pedig nem csupán parkolást, hanem tárolást is ad. A nyugati tájolás és a 2,6 m-es belmagasság világos, levegős atmoszférát biztosít, ahol minden pillanat élménnyé válik.

Technika, ami a jövőt szolgálja:

A hőszivattyús padlófűtés és hőtároló bojler gondoskodik a kellemes, egyenletes hőérzetről alacsony költségek mellett, az energiatakarékos melegvíz-használat és a 15 cm homlokzati szigetelés pedig a fenntartható, hosszú távú rezsit garantálja. A korszerű műanyag nyílászárók 3 rétegű üvegezéssel, a cseréptető és a könnyűszerkezetes födém 25 cm kőzetgyapot szigeteléssel együtt alkotják a stabil, modern épületet. A jövőre is gondolva 4 kWp napelem telepítésére is van lehetőség.

Tér, ami élni hív:

A hatalmas terasz és a tágas telek privát zónát kínál, ahol a család, a barátok vagy akár a csendes pihenés mind egyformán helyet kap. Itt minden nap különleges, minden pillanat számít, és a hétköznapok is izgalmassá válhatnak.

Személyre szabott kulcsrakész otthon:

A burkolatok, ajtók és kiegészítők a vételár keretein belül szabadon választhatók, így az otthonod már a kezdetektől a te stílusodra formálható. Kényelmesen kettős élvezet: a terek úgy alakíthatók, hogy két generáció is a maga tempójában élvezhesse a ház minden zugát

Átadás várhatóan 2026.
Nem egy kész házat kínálok, hanem egy otthont, ami még rólad szólhat.

A beruházás mögött egy stabil, sok referenciával rendelkező kivitelező áll, aki kiemelt minőségben dolgozik.
A jelenlegi építési fázis lehetőséget ad arra, hogy az új tulajdonos még saját igényei szerint alakítsa a tereket és részleteket.
Az átadás ütemezése rugalmas, a kivitelezés előrehaladásától és az értékesítés folyamatától függően alakul.

Ha a jövőt szeretnéd ma élni, ez a ház kész arra, hogy minden napot élménnyé varázsoljon.
Országh Eszter

Országh Eszter

Hívjon bizalommal

+36-30-648-Mutasd!

További hirdetéseim

Ingatlaniroda
GDN Ingatlanhálózat - HázPont
+36 30 785 2223

Küldjön üzenetet

Visszahívást kérek

Hasonló ingatlanok