H-004162. Székesfehérváron a Belváros közelében, kedvelt családiházas környéken, 239 m2-es önálló telken 79 m2-es 2 szobás, tégla építésű családi ház garázzsal, melléképülettel felújítva eladó.
Az ingatlan jól megközelíthető, a közelben belváros, buszmegálló, bevásárló központ, iskola, óvoda, orvosi rendelő egyaránt megtalálható.
A ház 1980 körül épült, terméskő alappal, kisméretű téglából, palafedéssel (jelenleg zsindelyfedésű alatta pala ). A födém járható. A házon 10cm külső szigetelés található. A mostani tulajdonos az épületet felújította 2024-2025-ben, az ajzat szigetelése megtörtént .A nyílászárók 3 rétegű korszerű, műanyag szerkezetű ablakok kerülnek beépítésre, alu redőnnyel, rovar hallóval. Fűtésről és a melegvíz ellátásról új kombi gázkazán gondoskodik, új radiátoros rendszerrel. A víz és elektromos vezetékrendszer is teljesen új. Áramellátás 32A. A konyha helyének kialakítása lehetővé teszi akár konyhasziget elhelyezését is. Konyhabútort az ár nem tartalmaz.
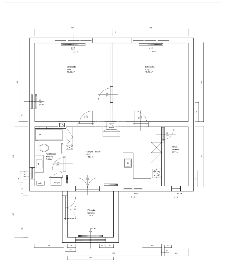
A ház 79m2 hasznos alapterületű, elosztását tekintve:
- előszoba, konyha- étkező, 2 nagyszoba, fürdőszoba wc-vel, kamra + feljárat a padlásra.
A telek teljesen bekerített, található rajta egy kis fatároló, és garázs.
A ingatlan adottságainak, fekvésének köszönhetően a tetőn napelemek is elhelyezhetők, melyek tovább csökkentik a ház rezsiköltségét, a beruházást akár pályázat útján is lehet finanszírozni.
A ház a kényelmes otthont biztosít a lakók számára, mind a belső lakrészben, mind a kert, udvar, illetve a terasz területén. A vásárláshoz, a jelenleg aktuális családok otthonteremtésére vonatkozó összes támogatás igénybe vehető (Felújítási támogatás, Jelzáloghitel, Babaváró kölcsön…)
Eladási irányára: 74,9 M Ft
Ha felkeltette érdeklődését, hívjon bizalommal (hétvégén is) éljen ingyenes, személyre szabott hitelügyintézés szolgáltatásunkkal. Segítünk továbbá adásvételhez szükséges ügyvédi közreműködésben, energetikai tanúsítvány, valamint értékbecslés elkészítésében.
For English details please send us a message or an e-mail, thank you.