Eladó Lakás (téglaépítésű) Budapest II. kerület - Nagybányai út

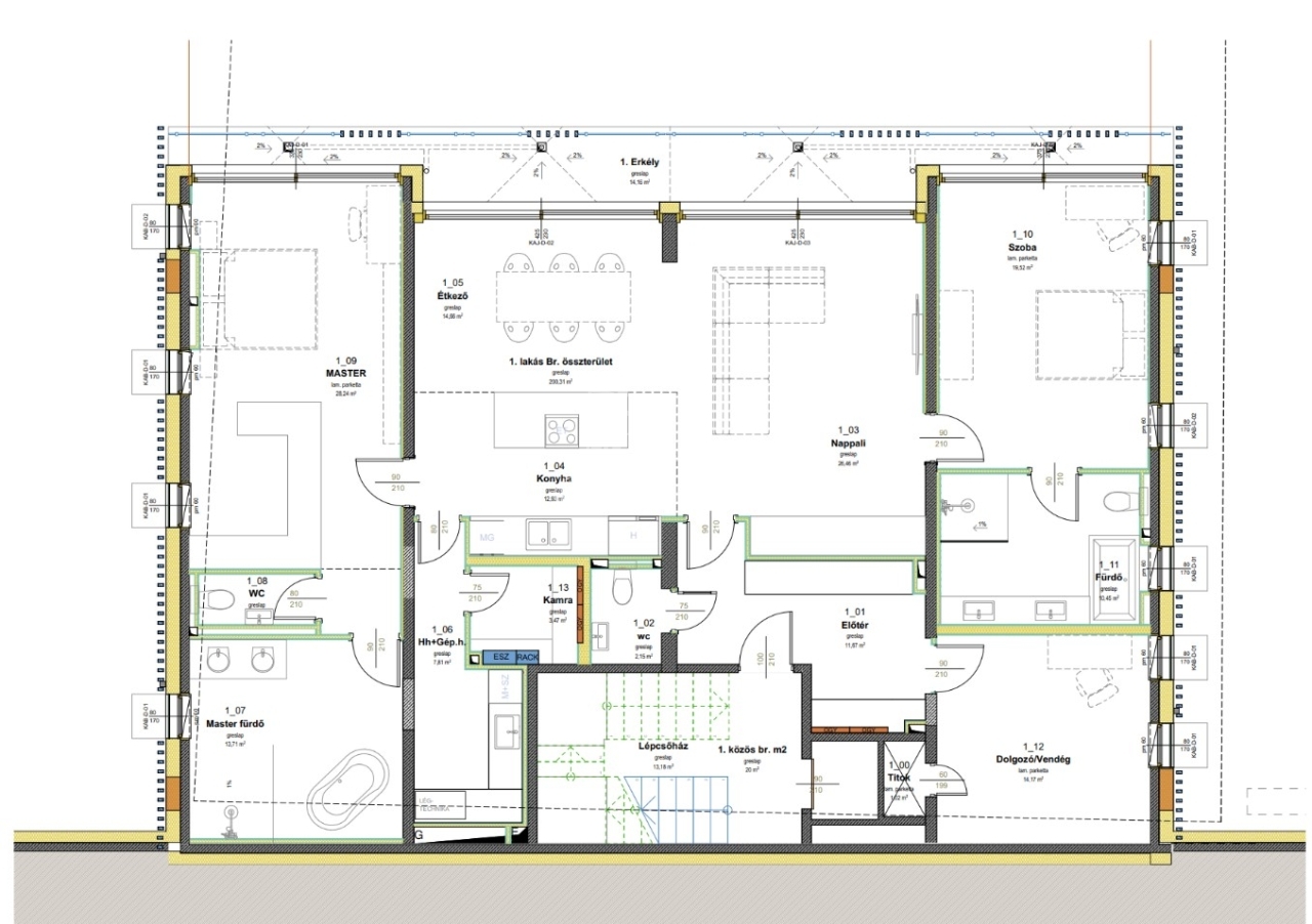
168 m2Alapterület 4 Szoba
440 000 000 Ft Ár
383133Azonosító
További adatok

Panoráma Kilátás

Új Állapot

Tégla Szerkezet

14 m2 Erkély/terasz

Hőszivattyú Fűtés

A+++ Energetika

Dupla komfort Komfort

Saját beálló Parkolás

Emelet 4

Van Lift

Tömegközlekedés

Amerikai konyhás

Nincs Kertkapcsolat

2024 Építés éve

Déli Tájolás

Hitelkalkuláció – a részletekért kattintson valamelyik bank logójára!

⚙️ EGY KIVÉTELES LAKÁS, AMELY MINDEN RÉSZLETÉBEN A MINŐSÉGRŐL, A JÖVŐRŐL ÉS AZ ÉLMÉNYRŐL SZÓL. ⚙️

Törökvész egyik legszebb utcájában, a Nagybányai úton található ez a 168 nm-es luxuslakás páratlan 180°-os panorámával, 14 nm-es terasszal, intelligens otthon rendszerrel, és egyedülálló építészeti gondossággal.

Ez a lakás azoknak készült, akik többre vágynak: térre, csendre, technológiára, és természetre – kompromisszumok nélkül.

***** PLEASE SCROLL DOWN FOR THE ENGLISH VERSION *****

⚙️ FŐBB JELLEMZŐK:
☆ Helyszín: Budapest II. kerület, Törökvész (Nagybányai út)
☆ Méret: 168 nm + 14 nm terasz
☆ Elrendezés: 3 hálószoba + nappali-étkező-konyha egyben
☆ Fürdők: 2 teljes fürdő + vendég WC
☆ Parkolás: 1 felszíni beálló, elektromos autótöltővel
☆ Ár: 440 000 000 HUF
☆ Állapot: Emelt szerkezetkész – belsőépítészet szabadon választható

Az új tulajdonosnak csak a hideg-meleg burkolatokat, szanitereket és bútorokat kell kiválasztania. Igény esetén teljes körű szakági támogatás – a lakás akár 6–8 héten belül költözhető.

A képek látványtervek. Az alaprajz tájékoztató jellegű.

⚙️ KERT ÉS KÖZÖS TEREK – ÉLHETŐ LUXUS KÍVÜL-BELÜL

A lakáshoz tartozó társasházban csupán 6 prémium otthon található, körülötte parkosított, automata öntözésű közös kert díszfákkal, hangulatvilágítással, kültéri tűzrakókkal, és előkészített szauna- és jacuzzi csatlakozásokkal. Egy valódi, nyugodt oázis a város felett.

⚙️ OKOSOTTHON RENDSZER – LOXONE ELŐKÉSZÍTÉSSEL

✔ Távolról vezérelhető fűtés, hűtés, párátlanítás
✔ Elektromos zsalúziák, videókaputelefon, riasztó
✔ iPadről és mobilról kezelhető vezérlés
✔ Ujjlenyomatolvasós és NFC-s bejárati rendszer

⚙️ PRÉMIUM GÉPÉSZET ÉS TECHNOLÓGIA

✔ Daikin hőszivattyús rendszer: padlófűtés + mennyezethűtés
✔ Wolf hővisszanyerős szellőztető rendszer
✔ 3 rétegű ALIPLAST alumínium nyílászárók, elektromos árnyékolók
✔ Külön albetét, önálló mérőórákkal

⚙️ KIVÁLÓ LOKÁCIÓ – NYUGODT KÖRNYEZET, KÖZPONTI ELÉRHETŐSÉG

✔ Tömegközlekedés: 11-es és 29-es busz, gyors elérés Széll Kálmán térre
✔ Autóval 15–20 perc a belváros
✔ Fejlett úthálózat, több alternatív útvonal
✔ Csendes, zöld utcában, mégis közel mindenhez

⚙️ INFRASTRUKTÚRA A KÖZELBEN

✔ Bevásárlás: Rózsadomb Center, Rózsakert, Mammut, Hüvi
✔ Oktatás: SEK Nemzetközi Iskola, francia és angol óvodák
✔ Egészségügy: Rózsakert Medical Center, Budai Egészségközpont
✔ Szabadidő: teniszklubok, uszoda, jóga, Margitsziget, Hármashatár-hegy

⚙️ BEFEKTETÉSI LEHETŐSÉG, AMI RITKASÁGSZÁMBA MEGY

✔ Örökpanorámás, új építésű lakás Rózsadombon
✔ Magas presztízs, szűk kínálat, folyamatos kereslet
✔ Külföldi vevők és expatok által is keresett lokáció

☆ TOVÁBBI INFORMÁCIÓÉRT VAGY MEGTEKINTÉSÉRT KERESSEN BIZALOMMAL!

***** THE ENGLISH VERSION *****

⚙️ A UNIQUE RESIDENCE THAT EMBODIES QUALITY, VISION, AND EXPERIENCE ⚙️

Located on the prestigious Nagybányai Street in Törökvész, this 168 sqm luxury apartment offers unmatched 180° panoramic views, a 14 sqm terrace, a full smart home system, and exceptional architectural detail.

Designed for those who desire more: space, peace, technology, and nature — without compromise.

⚙️ KEY FEATURES:

☆ Location: Budapest District II, Törökvész (Nagybányai Street)
☆ Size: 168 sqm + 14 sqm terrace
☆ Layout: 3 bedrooms + open-plan living-dining-kitchen
☆ Bathrooms: 2 full + guest WC
☆ Parking: 1 surface space with electric vehicle charger
☆ Price: HUF 440,000,000
☆ Condition: Advanced structural shell – including heating system, alarm system, and other mechanical installations – separate ownership unit with individual meters.
The new owner only needs to choose the hot and cold coverings, sanitary ware and furniture. Full professional support if required – the apartment can be moved into within 6–8 weeks.
The images are visual renderings. The floor plan is for informational purposes only.

⚙️ GARDEN AND SHARED SPACES – OUTDOOR ELEGANCE

The building houses only 6 premium residences, surrounded by a landscaped garden with automatic irrigation, decorative trees, ambient lighting, outdoor fire pits, and pre-installed sauna & jacuzzi connections. A true peaceful oasis above the city.

⚙️ SMART HOME SYSTEM – LOXONE PRE-INSTALLATION

✔ Remote control of heating, cooling, and dehumidification
✔ Electric blinds, video intercom, alarm system
✔ Controlled via iPad and mobile devices
✔ Fingerprint and NFC entry system

⚙️ PREMIUM ENGINEERING AND TECHNOLOGY

✔ Daikin heat pump system: underfloor heating + ceiling cooling
✔ Wolf heat recovery ventilation system
✔ Triple-glazed ALIPLAST aluminum windows with motorized blinds
✔ Separate utility meters on individual units

⚙️ PRIME LOCATION – QUIET YET WELL CONNECTED

✔ Public transport: buses 11 and 29, fast connection to Széll Kálmán Square
✔ 15–20 minutes drive to city center by car
✔ Developed road network with multiple alternative routes
✔ Quiet, green street with all amenities nearby

⚙️ INFRASTRUCTURE NEARBY

✔ Shopping: Rózsadomb Center, Rózsakert, Mammut Mall, Hüvi
✔ Education: SEK International School, French and British kindergartens
✔ Healthcare: Rózsakert Medical Center, Buda Health Center
✔ Leisure: tennis clubs, swimming pools, yoga, Margaret Island, Hármashatár Hill

⚙️ INVESTMENT OPPORTUNITY

✔ Panoramic new build apartment
✔ High prestige, limited supply, steady demand
✔ Popular location among foreign buyers and expats

☆ FOR MORE INFORMATION OR TO SCHEDULE A VIEWING, PLEASE CONTACT US!

B.Zs.
Országh Eszter

Országh Eszter

Hívjon bizalommal

+36-30-648-Mutasd!

További hirdetéseim

Ingatlaniroda
GDN Ingatlanhálózat - HázPont
+36 30 785 2223

Küldjön üzenetet

Visszahívást kérek

Hasonló ingatlanok