Eladó Családi ház Harasztifalu - Harasztifalu

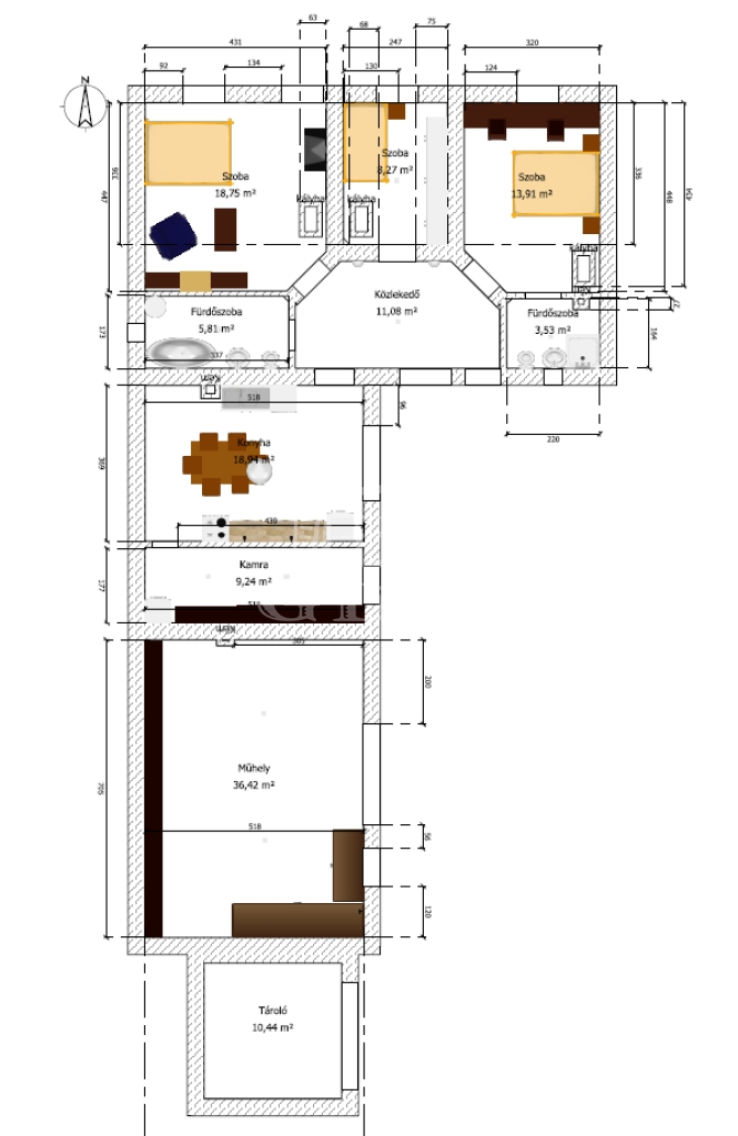
100 m2Alapterület 2 + 1 Szoba
33 000 000 Ft Ár
394091Azonosító
További adatok

3559 m2 Telek

Kertre néző Kilátás

Felújítandó Állapot

Tégla Szerkezet

Egyéb Fűtés

Dupla komfort Komfort

Saját garázs Parkolás

Tömegközlekedés

Nem Amerikai konyhás

Van Kertkapcsolat

1930 Építés éve

Délnyugati Tájolás

Hitelkalkuláció – a részletekért kattintson valamelyik bank logójára!

Árcsökkenés 35.000.000 Ft helyett most 33.000.000 Ft!
Eladó egy, 100 m²-es családi ház Harasztifaluban, amely tökéletes választás mindazok számára, akik nyugodt vidéki életre, gazdálkodásra vagy akár befektetési lehetőségre vágynak.

A 3559 m²-es, tágas telek számos lehetőséget rejt magában: igény esetén megosztható, de kiválóan alkalmas állattartásra, kertészkedésre vagy egyéb gazdálkodási tevékenységekre is. A terület mérete és elrendezése miatt ideális választás azoknak is, akik saját önellátó életmódot szeretnének kialakítani.

Az ingatlanhoz tartozik egy nagy méretű műhely vagy garázs, amely tökéletes vállalkozás indításához, hobbi tevékenységekhez vagy több autó tárolására is.

A ház műszakilag felújított: új, korszerű villanyhálózat (3 fázis), teljesen megújult vízhálózat, cserépkályhás fűtés, amely gazdaságos és hangulatos megoldást biztosít

Ez az ingatlan nemcsak otthonként, hanem hosszú távú befektetésként is kiváló választás, hiszen a telek mérete és sokoldalúsága egyedülálló lehetőségeket kínál.

Ne hagyja ki ezt a ritka alkalmat! Ha egy nyugodt, mégis sokoldalúan kihasználható ingatlant keres, ez a ház Önre vár. Keressen bizalommal!
Országh Eszter

Országh Eszter

Hívjon bizalommal

+36-30-648-Mutasd!

További hirdetéseim

Ingatlaniroda
GDN Ingatlanhálózat - HázPont
+36 30 785 2223

Küldjön üzenetet

Visszahívást kérek

Hasonló ingatlanok