Eladó Családi ház Gyermely - Központban

125 m2Alapterület 5 + 2 Szoba
29 900 000 Ft Ár
392888Azonosító
További adatok

822 m2 Telek

Panoráma Kilátás

Építés alatt Állapot

Tégla Szerkezet

Egyéb Fűtés

Összkomfort Komfort

Saját beálló Parkolás

Közepes Tömegközlekedés

Amerikai konyhás

Van Kertkapcsolat

2022 Építés éve

Hitelkalkuláció – a részletekért kattintson valamelyik bank logójára!

Eladó családi ház panorámás telken!

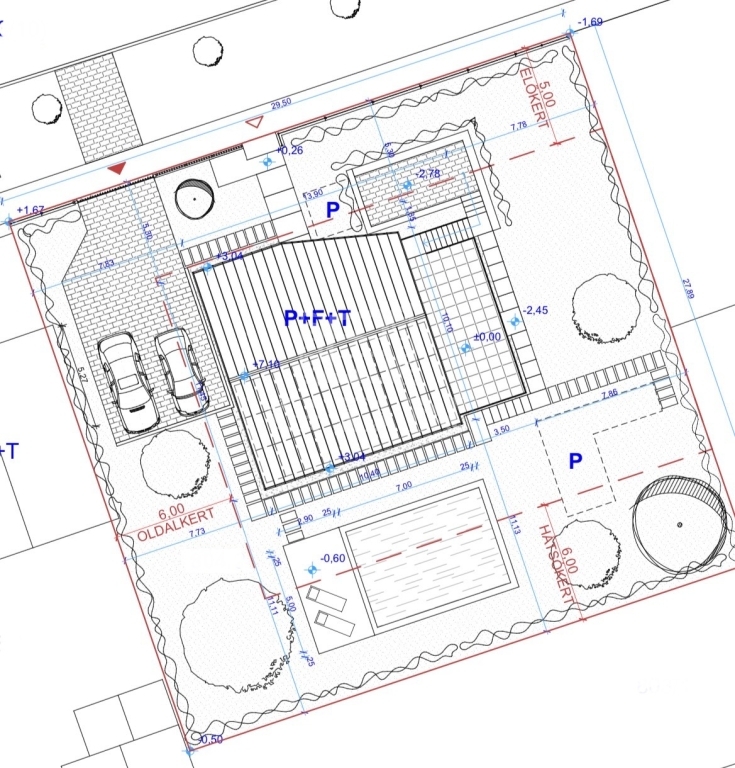
Megvételre kínálunk Budapesttől 40 km távolságra, M1-es autópálya zsámbéki leágazásától 10 km-re, a nyugalom és béke érzését nyújtó Gyermely település központjában egy nettó 125 nm alapterületű, építés alatt álló, önálló családi házat 822 nm-es telken.

A munkálatokat 15 évvel ezelőtt megkezdték, az új tervek 2 éve készültek, aminek már elkezdték a munkálatait, családi okokból nem fejezték be, a terveket mellékeltük a hirdetésben.

Amivel segítjük az Ön ingatlan vásárlását:
- ingyenes hitelügyintézés (CSOK és Babaváró és egyéb hitel
ügyintézése is)
- jogi háttér,
- földhivatali ügyintézés,
- energetikai tanúsítvány ügyintézése,
- a vevő számára ingyenes az ingatlanközvetítés.

Várom szíves megkeresését.
Országh Eszter

Országh Eszter

Hívjon bizalommal

+36-30-648-Mutasd!

További hirdetéseim

Ingatlaniroda
GDN Ingatlanhálózat - HázPont
+36 30 785 2223

Küldjön üzenetet

Visszahívást kérek

Hasonló ingatlanok