Eladó Nyaraló Dunavarsány - Dunapart

150 m2Alapterület 4 Szoba
85 500 000 Ft Ár
393154Azonosító
További adatok

288 m2 Telek

Panoráma Kilátás

Építés alatt Állapot

Ytong Szerkezet

25 m2 Erkély/terasz

Hőszivattyú Fűtés

Összkomfort Komfort

Saját beálló Parkolás

Gyenge Tömegközlekedés

Amerikai konyhás

Van Kertkapcsolat

1996 Építés éve

Eladó közvetlen vízparti nyaraló Dunavarsányban

Különleges adottságú, közvetlen Duna-parti téglaház eladó Dunavarsány csendes, árvízvédett részén, mindössze néhány percre Budapest határától. A természetközeli környezet és a főváros közelsége ritka kombinációt kínál azok számára, akik vízparti nyugalomra vágynak, mégis elérhető távolságban maradnának a várostól.

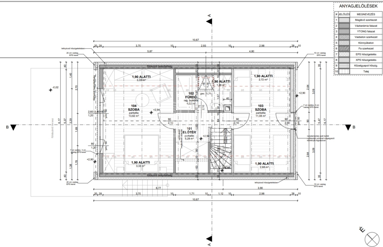
Tervezett elrendezés
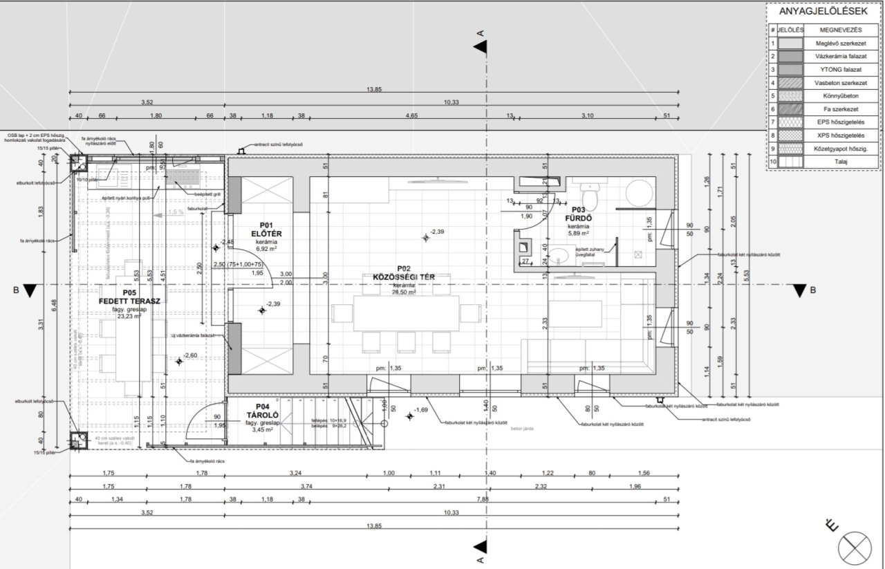
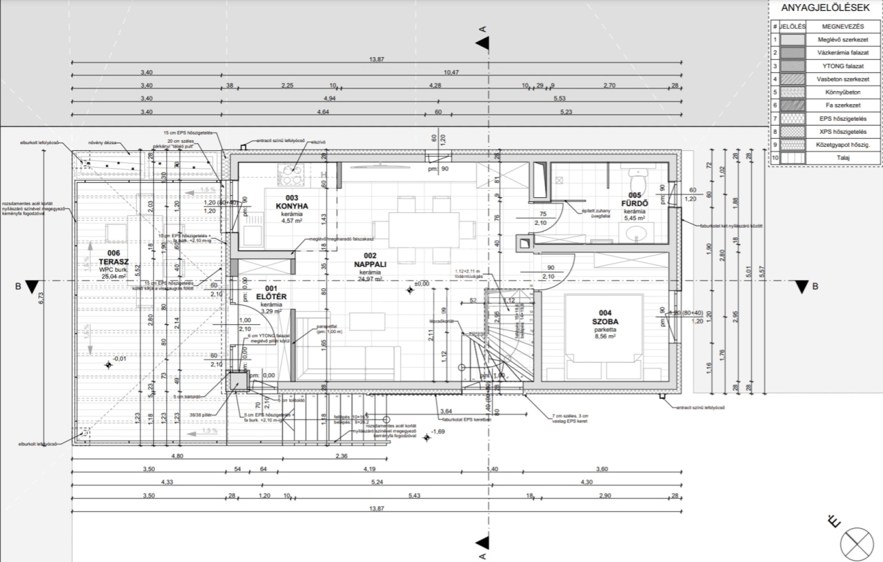
Első szint: előszoba, teraszkapcsolatos amerikai konyhás nappali, fürdőszoba, valamint egy dolgozó- vagy hálószoba.
Második szint: két tágas hálószoba, gardrób (igény esetén további hálószobává alakítható) és egy fürdőszoba.
Földszint: önálló vendéglakásnak, közösségi térnek vagy akár wellness-részlegnek is kialakítható, amelyhez egy hangulatos, nagyméretű fedett terasz csatlakozhat.
Műszaki tartalom
Új faszerkezetű tető Bramac cseréprendszerrel
Velux tetőtéri ablakok
Ytong és Silka külső falazat
Ytong válaszfalak

Ez az ingatlan ideális választás horgászoknak, vízi sportok kedvelőinek vagy mindazoknak, akik exkluzív, közvetlen vízparti otthont keresnek a főváros közvetlen közelében.

Igazi vízparti paradicsom – elérhető közelségben a városhoz.

Iranyár: 85.5mft

Amennyiben felkeltettem érdeklődését keressen bizalommal.
Országh Eszter

Országh Eszter

Hívjon bizalommal

+36-30-648-Mutasd!

További hirdetéseim

Ingatlaniroda
GDN Ingatlanhálózat - HázPont
+36 30 785 2223

Küldjön üzenetet

Visszahívást kérek

Hasonló ingatlanok