Eladó Családi ház Domony - Akác utca

118 m2Alapterület 4 Szoba
130 000 000 Ft Ár
393368Azonosító
További adatok

645 m2 Telek

Panoráma Kilátás

Új Állapot

Tégla Szerkezet

Megújuló energia Fűtés

Dupla komfort Komfort

Saját beálló Parkolás

Tömegközlekedés

Amerikai konyhás

Van Kertkapcsolat

2026 Építés éve

Délnyugati Tájolás

Hitelkalkuláció – a részletekért kattintson valamelyik bank logójára!

Eladó újépítésű, exkluzív családi ház Domonyvölgy szívében

Domonyvölgyben, a Gödöllői-dombság gyönyörű, természetvédelmi területén kínáljuk megvételre ezt a 619 m²-es telken épülő modern családi házat, amely a kényelem és a fenntarthatóság jegyében készül.

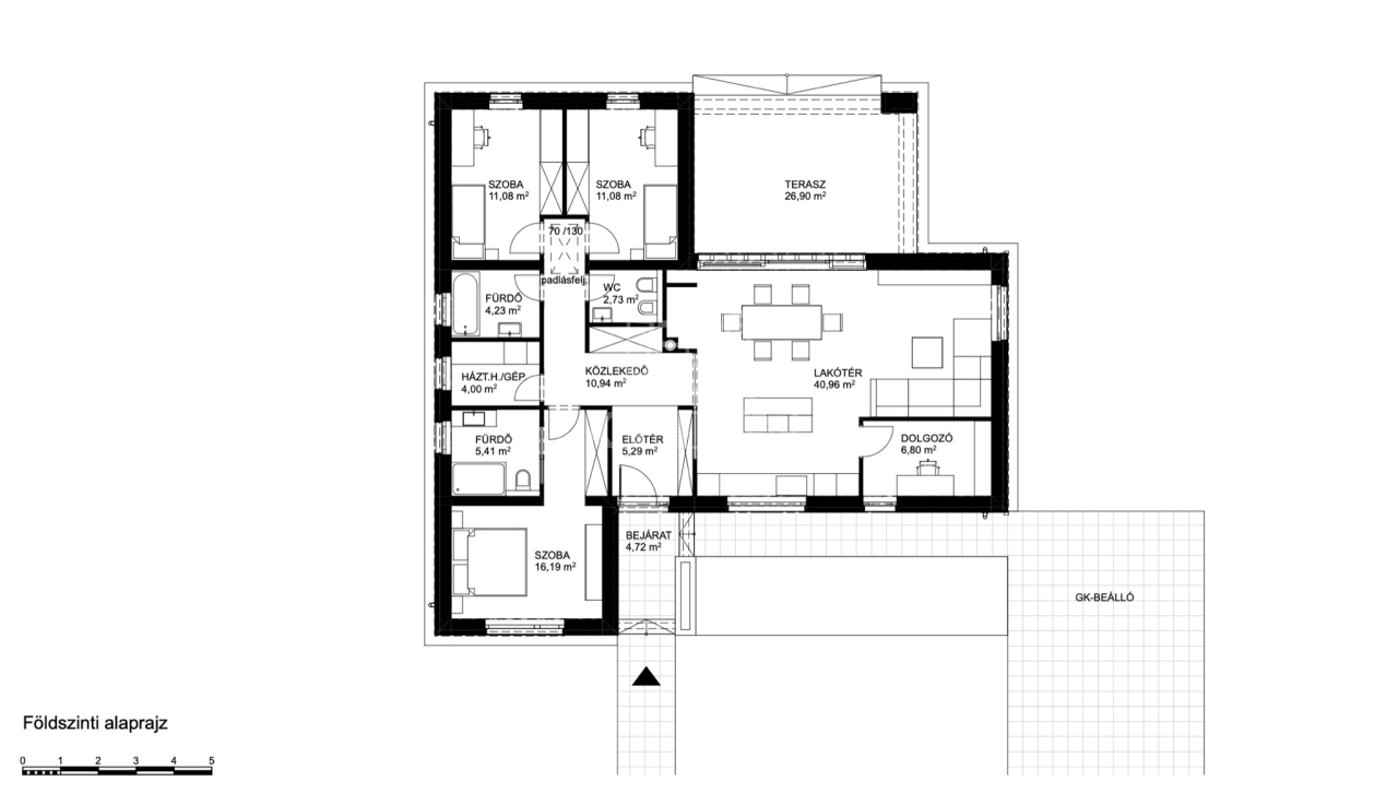
Az épület jelenlegi tervei szerint 118 m² lakóterű, de igény szerint akár 180 m²-re is bővíthető, így tökéletes választás lehet kisebb és nagyobb családoknak egyaránt.

Területi besorolása Lf-2 (falusias lakóövezet), 30% beépíthetőség, 5 méteres épületmagasság engedélyezett.

A belterületi övezet utolsó építési telke.

Főbb helyiségek:
- tágas, amerikai konyhás nappali-étkező (41 m²)
- 4 szoba (16, 11, 11 és 7 m²)
- 2 fürdőszoba, külön WC
- háztartási helyiség, közlekedők, előtér
- 27 m²-es terasz
- igény szerint garázs is kialakítható

Műszaki tartalom:

- beton alap, tégla falazat, kerámia tetőcserép
- háromrétegű, hőszigetelt műanyag nyílászárók
- vizes helyiségekben greslap, szobákban melegburkolat
- hőszivattyús fűtés előkészítéssel, napelemrendszer lehetőséggel
- kémény kiépítve kandallóhoz
- közművek: víz, villany az utcában, csatorna a telken belül (telekre való bevitel folyamatban, a vevő igényeihez igazítva)

Ez a ház magas műszaki tartalommal épül, amely modern és energiatakarékos otthont biztosít. A kivitelező cég referenciájaként a környéken épülő házak megtekinthetők.

Finanszírozási lehetőségek:

- CSOK Plusz
- 3%-os Otthon Start hitel
- Zöld hitel







Környék és elhelyezkedés:

A Budapesttől mindössze 35 km-re található Domonyvölgy a Natura 2000 természetvédelmi területen helyezkedik el, ahol négy hangulatos tó, erdők és különleges élővilág várja a kikapcsolódásra vágyókat.
Tömegközlekedéssel könnyen elérhető Gödöllő, illetve Aszód és Bag ahonnan számos busz és vonathálózat áll rendelkezésre.
M3 autópálya pár perc alatt elérhető (Bag, Gödöllő)

Szabadidős lehetőségek a közelben:
D-Beach homokos partszakasszal és pálmafákkal
Lázár Lovaspark – csikós bemutató, állatsimogató, magyaros vendéglátás
Domonyvölgyi víztározó és horgásztó
Extrém élmények: quad túra, off-road terepjáró, tankvezetés, paintball

Ez a ház ideális választás mindazoknak, akik szeretnék a főváros közelségét ötvözni a nyugodt, természetközeli életérzéssel – egy exkluzív, korszerű és bővíthető otthonban.

Az ingatlan előre egyeztetett időpontban megtekinthető!
Országh Eszter

Országh Eszter

Hívjon bizalommal

+36-30-648-Mutasd!

További hirdetéseim

Ingatlaniroda
GDN Ingatlanhálózat - HázPont
+36 30 785 2223

Küldjön üzenetet

Visszahívást kérek

Hasonló ingatlanok