Eladó Családi ház Diósd - Új építés luxus kivitelezés

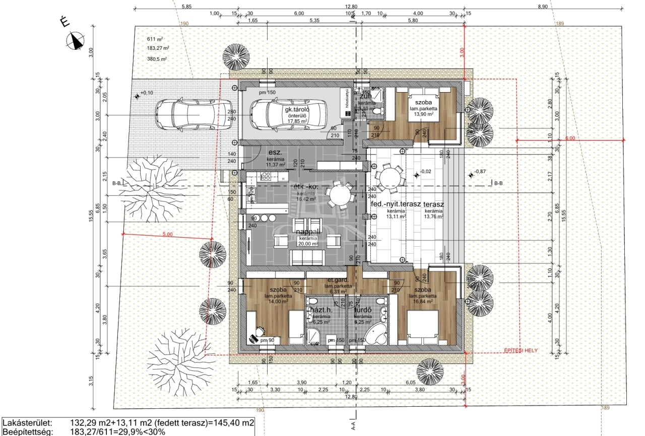
145 m2Alapterület 4 Szoba
210 000 000 Ft Ár
392800Azonosító
További adatok

611 m2 Telek

Udvari Kilátás

Új Állapot

Tégla Szerkezet

13 m2 Erkély/terasz

Hőszivattyú Fűtés

Dupla komfort Komfort

Saját garázs Parkolás

Tömegközlekedés

Amerikai konyhás

Van Kertkapcsolat

2026 Építés éve

Délkeleti Tájolás

Hitelkalkuláció – a részletekért kattintson valamelyik bank logójára!

EXKLUZÍV ÚJ építésű családi ház Diósd egyik legértékesebb részén, Diósdligeten.
Nagy erőkkel folyik az építkezés!!! Még dönthet a belső kialakításban!

Diósd rendezett környezetében formálódik ez a letisztult, luxus megjelenésű családi ház, ahol minden részlet a modern életstílust szolgálja.
CSEND, MADÁRCSICSERGÉS! A NYUGALOM SZIGETE!

A belső terek elrendezése:
- kényelmes közlekedő
- amerikai konyhás nappali, ahol főzés közben is kapcsolatban maradhat a család és a vendégek
- 3 hálószoba
- mindegyik szobához külön fürdőszoba!
- a nappaliból megközelíthető a szinte egybenyitható hatalmas méretű terasz, ami megnöveli a teret, ahol igazán élvezheti a családi, baráti összejöveteleket
- garázs, melyből közvetlenül megközelítheti a belső tereket, így ha esik, ha fúj, az Ön kényelme teljes mértékben biztosított.

A tágas, amerikai konyhás nappali a ház szíve, amely természetes fénnyel, teraszkapcsolattal válik igazán élhetővé.
A három hálószoba, a garázs és a korszerű gépészet mind azt szolgálja, hogy a kényelem és az energiahatékonyság kéz a kézben járjon.

PRÉMIUM műszaki tartalom, ami a jövőnek épül:

Porotherm falazat, monolit vasbeton födém
15 cm grafitos homlokzati hőszigetelés
3 rétegű 7légkamrás antracit nyílászárók elektromos alumínium redőnnyel
hőszivattyús rendszer, H tarifa
teljes padlófűtés
klimatizált terek - központi hűtés és szellőzőrendszer
elektromos redőnyök

Extra előkészítések a jövőre:
napelem- és elektromos autó-töltő
kamerarendszer, riasztó, modern okosmegoldások

Lokáció, ami ritka érték:
Aszfaltozott utca, kész házak környezete, nincs további építkezés.
Budapest mindössze 15 perc autóval, M0, M6, M7 gyorsan elérhető.
Iskola, óvoda, bevásárlás, éttermek – minden karnyújtásnyira.

Nem tömegmegoldás. Nem sablon.
Egy átgondolt, időtálló otthon azoknak, akik minőséget keresnek.

A kivitelezés tapasztalt, referenciákkal rendelkező építőcsapat munkája, e-naplós rendszerrel, átlátható folyamatokkal. Minden tervdokumentáció elérhető.

Tervezett átadás: 2026 nyár használatbavételi engedéllyel

!!! A képek között látványtervek szerepelnek, szobákról, nappali berendezés, fürdőszoba. Ötletként kiválóan szolgálnak, az elképzeléseknek a fantázia szab határt!!!!!

Ne vigyék el Ön elöl! Érdeklődjön és válassza ki még most Ön a burkolatokat, színeket és kövesse tovább az építkezés folyamatát!
Teljes mértékben személyre szabható belső kialakítás:
Burkolatok, szaniterek, beltéri ajtók – az új tulajdonos döntései alapján, rugalmas kivitelezéssel.
Országh Eszter

Országh Eszter

Hívjon bizalommal

+36-30-648-Mutasd!

További hirdetéseim

Ingatlaniroda
GDN Ingatlanhálózat - HázPont
+36 30 785 2223

Küldjön üzenetet

Visszahívást kérek

Hasonló ingatlanok