Eladó Ikerház Budapest XXII. kerület - GARÁZZSAL ÉRINTKEZŐ ÚJ IKERHÁZ

130 m2Alapterület 5 Szoba
168 000 000 Ft Ár
390874Azonosító
További adatok

500 m2 Telek

Kertre néző Kilátás

Új Állapot

Tégla Szerkezet

500 m2 Erkély/terasz

Hőszivattyú Fűtés

Összkomfort Komfort

Saját garázs Parkolás

Tömegközlekedés

Amerikai konyhás

Van Kertkapcsolat

2025 Építés éve

Hitelkalkuláció – a részletekért kattintson valamelyik bank logójára!

XXII. kerület Óhegy csendes kertvárosias környezetében, összesen 1000 m2-es telken épülő 2 db(,"A" és "B" jelű)130 m2-es 5 szobás, fürdőszobás nagy teraszos ,garázzsal érintkező házak közül
CSAK A "B" JELŰ HÁZAT KÍNÁLJUK MEGVÉTELRE !

FONTOS ! Az "A" és "B" jelű házak garázsai beépítésre kerültek,
fürdőszoba, gardrób kerül kialakításra.
A garázs alapterülete 14,74 m2

AZ "A" jelű HÁZ ELADÁSRA KERÜLT !

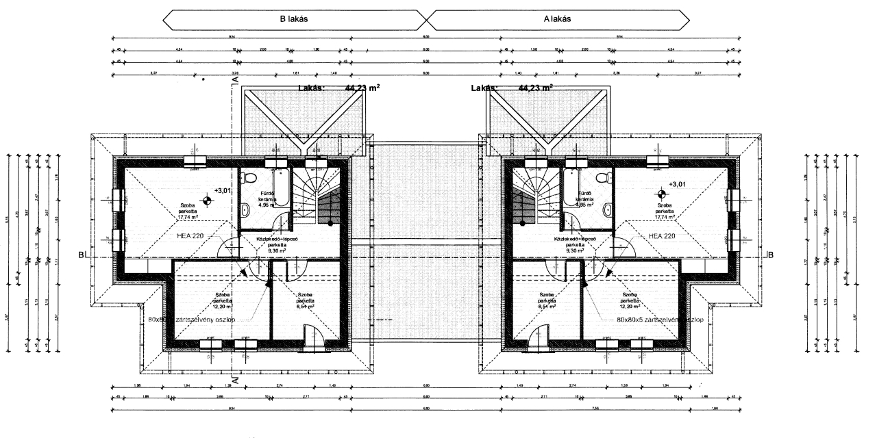
Mindkét ház ALAPRAJZA, TELEK MÉRETE, KIVITELEZÉSE AZONOS !

A megvételre kínált:
"B" jelű ingatlan KULCSRAKÉSZ ÁRA: 168 millió Ft

Az ingatlanok saját 500 m2-es szeparált telek résszel, egyállásos garázzsal, térkövezett kocsibeállóval, külön mérőórákkal rendelkeznek.
A két lakás két épület tömbben helyezkedik el.
Az épületeket két garázs köti össze.

Helyiségei:
FÖLDSZINTEN: előszoba (5,7 m2), WC kézmosóval, nappali (31,25 m2), konyha-étkező (8,40 m2), vendégszoba (8 m2).

EMELETEN közlekedő(9,3 m2), fürdőszoba(5 m2), 3 hálószoba
(17,7 m2, 12,2 m2 és 8,5 m2 méretűek.)

A MÉRETEKET, ELRENDEZÉST LÁSD AZ ALAPRAJZOKON !

MŰSZAKI TARTALOM:
-Porotherm 30-as falazat,15 cm külső homlokzati szigetelés
-25 cm tetőszigetelés,12 cm lábazat xps szigetelés
-két szint között E gerendás vasbeton födém
-Leier beton cserép,csatorna rendszerrel
-3 rétegű üvegezéssel ellátott, műanyag nyílászárók
-elektromos alumínium redőnyök, szúnyoghálóval
-minden helyiségben padló fűtés, helyiségenként szabályozható
osztógyűrűvel
-Hőszivattyú 10 KWh
-Vízmelegítő hibrid 100 L
-Villamos energia :1x32 A, 1x25 A H tarifás villanyóra
-Hideg és meleg burkolatok 8000 Ft /m2, beltéri ajtók 80.000 Ft /db,
kád 100.000 Ft/db, szaniterek 30.000 Ft / db árig választhatók amit
tartalmaz az ingatlan vételára.

Átadás előtt, tereprendezésre kerül sor, építési törmelék elszállítása,
talaj kiegyenlítés.

TERVEZETT ÁTADÁS IDŐPONTJA : 2026. II. negyedév

A "B" jelű ingatlan eladási ára : 168 millió Ft

A HÁZAK ÖNÁLLÓ MÉRŐÓRÁKKAL, HASZNÁLATBAVÉTELI ENGEDÉLLYEL, TÁRSASHÁZ ALAPÍTÓ OKIRATTAL és H-TARIFÁS VILLANYÓRÁVAL kerülnek átadásra.

A környék lokációja jó, közelben iskola, óvoda, orvosi rendelő, bevásárlási lehetőség található.

Az ingatlan megtekintése előre egyeztetett időpontban lehetséges.
VÁROM HÍVÁSÁT, TOVÁBBI KÉRDÉSEIVEL kapcsolatosan JELENTKEZÉSÉT!
(G.I.)
Országh Eszter

Országh Eszter

Hívjon bizalommal

+36-30-648-Mutasd!

További hirdetéseim

Ingatlaniroda
GDN Ingatlanhálózat - HázPont
+36 30 785 2223

Küldjön üzenetet

Visszahívást kérek

Hasonló ingatlanok